Type-222
Versatile Detached Garage with Loft (≈193 m² total)
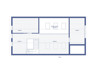
This modern barn-style detached garage offers ≈100 m² of ground floor space and a ≈92 m² loft, ideal for workshops, guest suites, studios, or home offices. The main level features a 2-car garage with a ≈4.9 m wide door, a flexible workshop/studio area, a kitchenette, bathroom, utility room, and a private office with French doors and large windows. Upstairs, the loft is naturally lit by skylights and includes two open rooms and two enclosed rooms that can serve as bedrooms or workspaces. The sleek gable roof design with vertical siding blends classic charm with contemporary flair. All plans are labeled for workshop/studio use—consult local codes if converting to a dwelling unit.
Designed with flexibility in mind, this structure adapts effortlessly to changing needs over time—whether as a creative workspace by day, a quiet retreat by night, or a fully equipped support building for a main residence. Generous ceiling heights and abundant natural light create an open, airy atmosphere on both levels, while the clear separation between garage, work, and office areas ensures practical everyday use.
AINULT TÄNA!!!
Ostes Style-212 Saad kaasa TASUTA 4.557€ VÄÄRTUSES Sauna
The loft level offers a calm, private environment well-suited for focused work, relaxation, or occasional overnight stays. Thoughtful proportions and straightforward construction make the building easy to customize, expand, or finish to a higher standard if desired. As a standalone structure, it provides both functional independence and strong architectural presence, making it a valuable long-term addition to any property.
Factory Package
Package Includes:
External wall elements
Internal wall elements
Roof structures
Fixing and fastening
Installation drawings and technical documentation
This is the standard factory package and is suitable for clients who wish to build the house themselves or use their own construction company.
Does not include:
Building permit documentation
Architectural design services
Installation Package
Package Includes:
Site preparation and foundation works (if required)
Building erection
Installation of external and internal walls
Installation of roof structures
Installation of roofing underlay and battens
Installation of external doors and windows
Result: weatherproof closed house shell.
Finishing Package
Package Includes:
Installation of roof covering
Installation of rainwater drainage systems
All building services installations:
electrical systems
water and sewage systems
ventilation (by agreement)
Interior finishing according to a solution agreed with the client or based on a standard package
Result: fully finished and ready-to-live house.
Turnkey Package
Package includes:
Installation of sanitary equipment and fittings
Furniture installation
Installation of electrical appliances and lighting
Installation of household appliances and technical equipment
Building operation and maintenance manuals
Client training for building operation
External works around the building
Landscaping and garden design
Plot fencing and gates
Construction of access roads and driveways
Result: a fully completed home, ready for immediate occupancy.
