Style-250
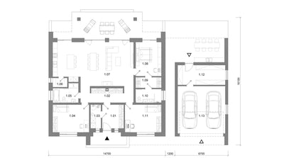
This well-organized single-storey home offers a comfortable and efficient layout with a total usable area of 192.74 m². The design emphasizes clear zoning between living, private, and service areas, making it ideal for everyday family life.
The home opens into a welcoming Vestibule (8.19 m²), providing a practical transition from the exterior into the interior. From here, the central Corridor (10.41 m²) ensures smooth access to all main rooms while maintaining privacy and order throughout the house.
A compact yet efficient Technical Room (3.96 m²) is discreetly positioned to house essential systems, while a nearby Pantry (2.14 m²) offers convenient additional storage for food and household supplies.
The heart of the home is the open-plan Living Room, Kitchen and Dining Area (54.14 m²). This generous space is designed for both daily living and entertaining, with seamless connections between cooking, dining, and relaxation areas and direct access to the outdoor terrace.
The private family zone includes two spacious children’s bedrooms: Children’s Room (16.10 m²) and Children’s Room (16.10 m²), each offering ample space for rest, study, and play. These rooms are served by a comfortable Bathroom (6.73 m²).
The master bedroom, Bedroom (14.00 m²), provides a calm retreat and is complemented by a dedicated Walk-in Wardrobe (4.38 m²) and a private Bathroom (5.59 m²), ensuring maximum comfort and privacy.
Additional storage is available in the Storage Room (15.00 m²), ideal for seasonal items, tools, or household equipment.
AINULT TÄNA!!!
Ostes Style-250 Saad kaasa TASUTA 2,579€ VÄÄRTUSES Hot Tub-i
The house also includes a spacious Garage (36.00 m²) with room for two vehicles and extra storage, directly connected to the house for everyday convenience.
Overall, this home combines functionality, comfort, and clean architectural planning, making it an excellent choice for modern family living.
Factory Package
Package Includes:
External wall elements
Internal wall elements
Roof structures
Fixing and fastening
Installation drawings and technical documentation
This is the standard factory package and is suitable for clients who wish to build the house themselves or use their own construction company.
Does not include:
Building permit documentation
Architectural design services
Installation Package
Package Includes:
Site preparation and foundation works (if required)
Building erection
Installation of external and internal walls
Installation of roof structures
Installation of roofing underlay and battens
Installation of external doors and windows
Result: weatherproof closed house shell.
Finishing Package
Package Includes:
Installation of roof covering
Installation of rainwater drainage systems
All building services installations:
electrical systems
water and sewage systems
ventilation (by agreement)
Interior finishing according to a solution agreed with the client or based on a standard package
Result: fully finished and ready-to-live house.
Turnkey Package
Package includes:
Installation of sanitary equipment and fittings
Furniture installation
Installation of electrical appliances and lighting
Installation of household appliances and technical equipment
Building operation and maintenance manuals
Client training for building operation
External works around the building
Landscaping and garden design
Plot fencing and gates
Construction of access roads and driveways
Result: a fully completed home, ready for immediate occupancy.
